
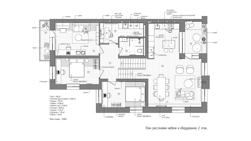
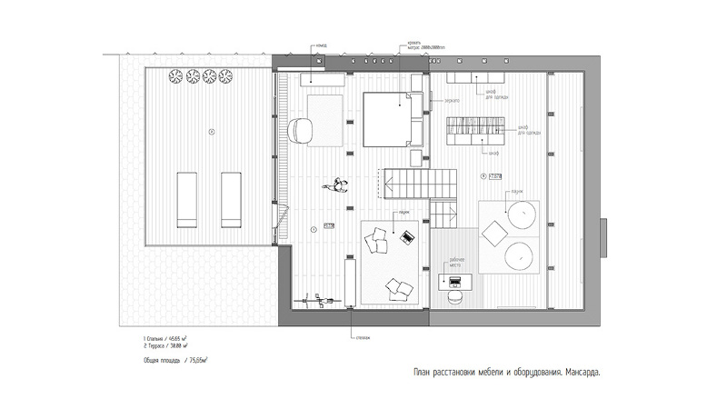
It's over a year ago that Kim featured the work of Russian architecture and design firm INT2 architecture and they just keep getting better and better. Actually there is only one thing to fault in this amazing Moscow townhouse. It's not real. It's a rendering. Part Scandinavian, part mid century, all computer generated ... until it's built. The colour blocking is blowing my mind. I can't wait for virtual to be made real.





















Original article and pictures take www.desiretoinspire.net site
Комментариев нет:
Отправить комментарий